一、气动隔膜调节阀 产品概述
上海江控阀门有限公司生产的ZJSG气动隔膜调节阀具有结构简单、流路阻小、流通力较同口径的其它阀大,无泄漏,能用于高粘度及悬浮颗粒流体的调节,根据隔膜材料的不同(橡胶或聚四氟乙烯)适用于调节强碱、强腐蚀性介质。由隔膜阀配用气动薄膜执行机构组成。隔膜与阀体间"山"形凸出面进行密封,与外界隔离(无填料函)。
特点:
1、采用轻型执行机构,高度及重量均可减小30%。
2、阀体内表面有多种材料涂复层,避免介质直接接触,承受强阀腐蚀性介质的腐蚀。
3、阀门关闭时,内、外泄漏量为零,特别适合于剧毒介质或不允许污染介质的阀节。
4、流路简单,阻力小,额定流量系数比同口径单座,套筒调节阀大。
适用场景:
气动隔膜调节阀特点特别适合于要求耐腐蚀、剧毒场合。
二、气动隔膜调节阀 产品图片
三、气动隔膜调节阀 材质参数
气动隔膜调节阀 零件材质| 阀体 | HT200、ZG230~450或下述材质衬里 |
|---|
| 隔膜 | 丁荃胶、天然胶、聚四氟乙烯波纹 |
| 薄膜 | 丁腈橡胶夹增强涤纶织物 |
| 弹簧 | 60S12Mn、阀体衬里材质及适用范围 |
气动隔膜调节阀 阀体衬里材质| 阀体衬里 | 使用温度(℃) | 适用介质 |
|---|
| 无衬里 | -10~+175 | 适用于非腐蚀性介质 |
| 软橡胶 | -10~+85 | 有很好的耐磨性能,适用于水泥、粘土、煤尘、干燥化肥等 |
| 硬橡胶 | -10~+85 | 适用于无机械、盐类、盐酸、镀金属溶液、软水、氯化物、氯气等 |
| 氯丁胶 | -10~+105 | 适用于动物油、植物油和润滑油,PH值变化范围很大的腐蚀性泥浆。抗磨损性能良好 |
| 丁荃胶 | -10~+120 | 防腐性能和耐磨性能良好,对大部分无机酸和酸性灰浆的耐蚀性好 |
| 陶瓷 | -10~+175 | 适用于温无机酸、氧化酸、卤素、醇类、酯类等化合物 |
| F46 | -10~+190 | 适用于硫酸、盐酸、氢氧化钠等强腐蚀介质 |
气动隔膜调节阀 隔膜衬里材质| 隔膜材质 | 使用温度(℃) | 适用介质 |
|---|
| 丁荃胶(B级) | -40~+100 | 大部分无机酸如:硫酸、氢氟酸、磷酸等适用,耐蚀性好,同时而各种碱和盐类 |
| 天然胶(Q级) | -50~+100 | 主要用于净化水、无机盐和烯的矿物酸介质 |
| 聚四氟乙烯 | -10~+150 | 极优的化学稳定性、耐强酸、浓碱、强氧化剂的腐蚀 |
四、气动隔膜调节阀 技术参数
| 公称通径(DN) | 15 | 20 | 25 | 32 | 40 | 50 | 65 | 80 | 100 | 125 | 150 | 200 | 250 |
|---|
| 阀座直径(dn) | 20 | 25 | 32 | 40 | 50 | 65 | 80 | 100 | 125 | 150 | 200 | 250 | 300 |
| 流量系数 | KV | 8 | 12 | 16 | 38 | 60 | 68 | 90 | 150 | 300 | 500 | 600 | 1200 | 1800 |
| 允许压差(MPa) | 1.0 | 0.89 | 1.0 | 1.0 | 1.0 | 1.0 | 1.0 | 0.6 | 0.38 | 0.15 | 0.09 |
| 公称压力(MPa) | 1.6、2.5、4.0、6.4 |
| 额定行程(mm) | 10 | 16 | 25 | 40 | 60 | 100 |
| 配用执行器型号 | ZHA/B-22 | ZHA/B-23 | ZHA/B-34 | ZHA/B-45 | / |
| 阀盖形式 | 标准型(-17~+250℃) |
| 压盖形式 | 螺栓压紧式 |
| 阀芯形式 | 隔膜式 |
| 流量特性 | 快开特性 |
| 密封填料 | V型聚四氟乙烯填料、含浸聚四氟乙烯石棉填料、石棉纺织填料、石墨填料 |
五、气动隔膜调节阀 气动薄膜执行机构参数
| 配置执行器类别 | ZHA/B多弹簧簿膜执行机构 |
|---|
| 执行器型号 | ZHA/B-22 | ZHA/B-23 | ZHA/B-34 | ZHA/B-45 | ZHA/B-56 |
| 有效面积(cm2) | 350 | 350 | 560 | 900 | 1400 |
| 行程(mm) | 10、16 | 24 | 40 | 40、60 | 100 |
| 弹簧范围(KPa) | 20~100(标准)、20-60、60-100、40-200、80-240 |
| 膜片材料 | 丁腈橡胶夹尼龙布、乙丙橡胶夹尼龙布 |
| 供气压力 | 140~400KPa |
| 气源接口 | RC1/4" |
| 环境温度 | -30~+70℃ |
| 可配附件 | 定位器、空气过滤减压器、保位阀、行程开关、阀位传送器、手轮机构等 |
| 作用形式 | 气关式(B)—失气时阀位开(FO);气开式(K)—失气时阀位关(FC) |
六、气动隔膜调节阀 性能参数
| 项目 | 不带定位器 | 带定位器 |
|---|
| 基本误差% | ±5.0 | ±1.0 |
| 回差% | 3.0 | 1.0 |
| 死区% | 3.0 | 0.4 |
| 始终点偏差% | 气开 | 始点 | ±2.5 | ±1.0 |
| 始点 | ±5.0 | ±1.0 |
| 气关 | 始点 | ±5.0 | ±1.0 |
| 终点 | ±2.5 | ±1.0 |
| 额定行程偏差% | ≤2.5 |
| 泄露量L/h | 0.01%×阀额定容量 |
| 可调范围R | 30:1 |
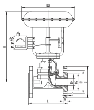
七、气动隔膜调节阀 结构图
八、气动隔膜调节阀 连接尺寸
| 公称通径 | 外型安装尺寸 |
|---|
| DO | 气开 | 气关 | 结构长度 L |
|---|
| DN15 | 285 | 479 | 532 | 125 |
| DN20 | 285 | 479 | 532 | 135 |
| DN25 | 285 | 479 | 532 | 145 |
| DN32 | 285 | 538 | 617 | 160 |
| DN40 | 285 | 553 | 632 | 180 |
| DN50 | 285 | 562 | 641 | 210 |
| DN65 | 360 | 754 | 855 | 250 |
| DN80 | 360 | 775 | 876 | 300 |
| DN100 | 360 | 857 | 958 | 350 |
| DN125 | 470 | 952 | 1077 | 400 |
| DN150 | 470 | 989 | 1114 | 460 |
| DN200 | 470 | 1084 | 1209 | 570 |
| DN250 | 580 | 1200 | 1200 | 680 |
| DN300 | 580 | 1235 | 1235 | 750 |
注:由于产品改进技术创新参数可能有一定变化,公司不另行通知,请咨询公司技术部门索取新数据。
下载:上海江控阀门有限公司-产品样本-气动隔膜调节阀.PDF
气动隔膜调节阀链接:https://www.jakon.cn/list_11/227.html